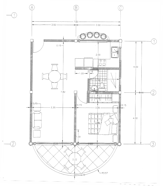
710 sq. feet - 66 sq. meters